[ Trung tâm thông tin du lịch văn hóa quận Asakusa ở Tokyo' ]
Trung tâm thông tin du lịch văn hóa quận Asakusa ở Tokyo do Kengo Kuma & Associates thiết kế có hình dáng như những ngôi nhà mái nghiêng đặt chồng lên nhau. Công trình này nằm gần ngôi đền phật giáo nổi tiếng Senso-ji được xây dựng vào thế kỷ thứ 6, ngôi chùa được xếp vào những công trình tôn giáo lâu đời nhất ở thủ đô Tokyo, Nhật Bản.
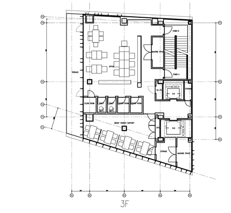
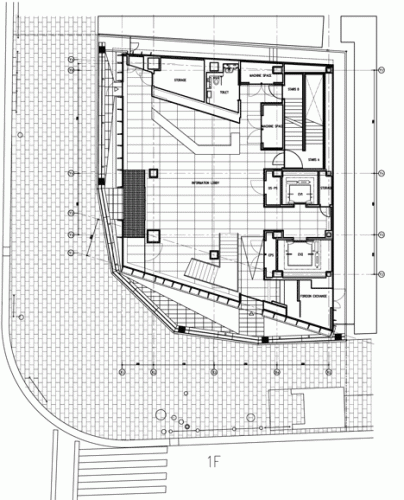
Được xây dựng với diện tích 326m2 và cao 8 tầng, phần nội và ngoại thất sử dụng chủ yếu là vật liệu gỗ, tạo điểm nhấn đẹp mắt với những công trình hiện đại gần đó. Công trình được thiết kế với nhiều chức năng như: không gian triển lãm, nơi hội họp, phòng đa chức năng, nơi cung cấp thông tin về du lịch cho mọi người. Đây là địa chỉ tin cậy giúp người dân có thể đến thăm quan tìm hiểu nhiều địa điểm du lịch hấp dẫn không những ở Nhật Bản mà còn tham khảo những chuyến du lịch quốc tế hấp dẫn.
Kengo Kuma & Associates cho biết tuy rằng độ cao trần nhà khá khiêm tốn nhưng chính hình thù những chiếc mái nghiêng đã mở rộng thể tích tăng thêm lượng không khí điều hòa làm cho mỗi tầng nhà trở nên thoáng mát hơn. Tầng trệt có sảnh đón lớn tại đây các bạn có thể đi lên lầu 1 bằng cầu thang và cảm nhận được hình dáng của chiếc mái nghiêng đặc trưng.
Kengo Kuma & Associates cũng chia sẻ rằng họ vừa mới hoàn thành một hiệu thuốc và một phòng khám hiện đại mang phong cách thiết kế thân thiện với môi trường ở gần công trình này.
Bạn đọc có thể xem thêm hình ảnh dưới đây:
Bạn đọc tham khảo thêm các thiết kế của Kengo Kuma – ở đây . Hình ảnh bởi Takeshi Yamagishi